Gîte de France Le puyconnieux 3 épis

Gîte de France Le puyconnieux 3 épis

Affiner votre recherche

Vacanciers
Ajouter les vacanciers
Adultes 13 ans et plus
Enfants De 3 à 12 ans
Bébés De 0 à 2 ans
Filtrer

Filtrer les résultats

{{filterSelected.length}}
Trier par : 
Adultes 13 ans et plus
Enfants De 3 à 12 ans
Bébés De 0 à 2 ans

{{compteurFiltreCategorie(index)}}
Disponibilité limitée
{{pctDispo}}
Etablissement très prisé
0 personnes l'ont réservé cette semaine
Prix en hausseRéservez avant que les prix augmentent

Les hébergements qui correspondent à votre sélection

Avec les dates du au

Détails de l’hébergement

-{{pourcentage}}% {{barrePrice}}€ {{finalPrice}}€/pers.
Cet hébergement est indisponible à vos dates. Essayez d’autres dates ou poursuivez votre recherche d’hébergement.

Une formule ski ?

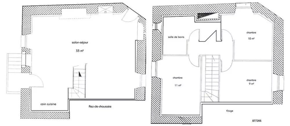
Description de l’établissement

On arrive à Grand Puyconnieux par une petite route qui traverse les bois de châtaigniers. A la saison des fleurs, ils embaument la campagne. Le hameau niché à flanc de colline ressemble à un hameau de montagne avec ses constructions en terrasse. Depuis la terrasse de la maison, la vue s'étend sur la forêt du Parc Naturel Périgord Limousin. La terrasse domine un agréable jardin et une piscine hors-sol de 2,8 X 7,8 X 1,2 m sécurisée ouverte de juin à fin septembre selon conditions météo. Terrain de pétanque dans le hameau.

Préparer la route des vacances

Adresse

Le Grand Puyconnieux

87230 DOURNAZAC

itinéraire

Horaires de remise des clés :

17:00-00:00
09 70 70 95 18