Gîte de France Gîte de chabanne 4 épis

Gîte de France Gîte de chabanne 4 épis

Affiner votre recherche

Vacanciers
Ajouter les vacanciers
Adultes 13 ans et plus
Enfants De 3 à 12 ans
Bébés De 0 à 2 ans
Filtrer

Filtrer les résultats

{{filterSelected.length}}
Trier par : 
Adultes 13 ans et plus
Enfants De 3 à 12 ans
Bébés De 0 à 2 ans

{{compteurFiltreCategorie(index)}}
Disponibilité limitée
{{pctDispo}}
Etablissement très prisé
0 personnes l'ont réservé cette semaine
Prix en hausseRéservez avant que les prix augmentent

Les hébergements qui correspondent à votre sélection

Avec les dates du au

Détails de l’hébergement

-{{pourcentage}}% {{barrePrice}}€ {{finalPrice}}€/pers.
Cet hébergement est indisponible à vos dates. Essayez d’autres dates ou poursuivez votre recherche d’hébergement.

Une formule ski ?

Description de l’établissement

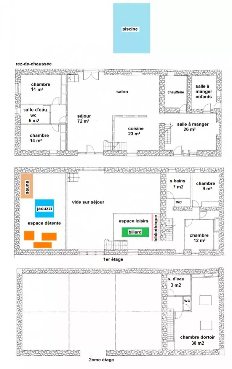
Gîte de très grand confort aménagé dans un vaste corps de ferme, d'un hameau typique des Monts d'Ambazac. Il ouvre par de grandes baies sur une terrasse et un jardin clos indépendant de 1200 m² avec piscine chauffée et sécurisée ouverte de fin avril à début octobre (selon les conditions météo). De nombreux divertissements sont disponibles sur place mais aussi aux alentours., notamment autour du Lac de St Pardoux (5 km) et des Monts d'Ambazac où est situé Chabanne. Des circuits de randonnées sont multiples et particulièrement attractifs. Plusieurs loisirs sont proposés en option : équitation, vélo et VTT, tennis, squash, pêche, golf...

Préparer la route des vacances

Adresse

9, Chabanne, Chabanne

87240 ST SYLVESTRE

itinéraire

Horaires de remise des clés :

17:00-00:00
09 70 70 95 18
f